Zbiorniki bezodpływowe jednopłaszczowe – solidne rozwiązanie na ścieki i deszczówkę
Zbiorniki bezodpływowe, określane również jako szamba szczelne, stanowią niezawodne rozwiązanie do gromadzenia różnego rodzaju nieczystości – ścieków bytowo-gospodarczych, wód opadowych, roztopowych czy ścieków rolniczych. Wersje jednopłaszczowe wykonywane z polietylenu (HDPE) cechują się wysoką odpornością na korozję oraz agresywne środowisko ścieków, co przekłada się na ich długą żywotność.
Wykonanie i praktyczność
Polietylen (HDPE) to materiał o doskonałych właściwościach mechanicznych i szczelności, gwarantujący bezpieczeństwo magazynowania nieczystości. Standardowa wysokość włazu rewizyjnego wynosi około 0,5 m (mierzona od dna rury dopływowej), jednak można ją zwiększyć za pomocą specjalnych nadbudów lub wykonania fabrycznego zgodnie z indywidualnymi potrzebami. Dzięki temu obsługa i konserwacja zbiornika stają się jeszcze wygodniejsze.
Polietylen (HDPE) to materiał o doskonałych właściwościach mechanicznych i szczelności, gwarantujący bezpieczeństwo magazynowania nieczystości. Standardowa wysokość włazu rewizyjnego wynosi około 0,5 m (mierzona od dna rury dopływowej), jednak można ją zwiększyć za pomocą specjalnych nadbudów lub wykonania fabrycznego zgodnie z indywidualnymi potrzebami. Dzięki temu obsługa i konserwacja zbiornika stają się jeszcze wygodniejsze.
Zastosowanie i korzyści
- Uniwersalne przeznaczenie: Zbiorniki jednopłaszczowe sprawdzają się zarówno przy domkach letniskowych, działkach rekreacyjnych, jak i w mniejszych gospodarstwach domowych, gdzie ilość ścieków jest stosunkowo niewielka.
- Certyfikowana jakość: Szambo z polietylenu posiada wymagane certyfikaty, co potwierdza jego szczelność i bezpieczne użytkowanie.
- Łatwy transport i montaż: Niska waga zbiornika oraz odporność na uszkodzenia mechaniczne ułatwiają instalację, skracając czas i koszty prac montażowych.
- Odporność na czynniki zewnętrzne: HDPE nie koroduje, a solidna konstrukcja jednopłaszczowa zapewnia szczelność przez wiele lat.
Jeśli celem jest sprawne magazynowanie ścieków i wód deszczowych w miejscach, gdzie nie ma możliwości podłączenia do kanalizacji, zbiorniki bezodpływowe jednopłaszczowe stanowią doskonałe, ekonomiczne oraz przyjazne środowisku rozwiązanie.
Montaż
Montaże są wykonywane na terenie całego kraju. Po zakupie przekazujemy kontakt do doświadczonych instalatorów, żeby skrócić czas poszukiwania montażysty.
Instalator przygotowuje wycenę usługi.
Dom i Woda nie wykonuje usług montażu zakupionych produktów. Instalatorzy są odrębnymi firmami, a skorzystanie z ich usług jest oczywiście dobrowolną decyzją każdego Klienta.
Klient kupujący w sklepie Dom i Woda może otrzymać kontakt do doświadczonego instalatora, jednak umowę na montaż Klient powinien podpisać z firmą instalacyjną, która wycenia zleconą usługę, wystawia oddzielną fakturę i ta firma ponosi odpowiedzialność za swoją pracę, rozpatruje ewentualne roszczenia czy reklamacje. Dom i Woda nie gwarantuje dostępności instalatora w wybranym terminie i podjęcia się wykonania zlecenia.
Instalator przygotowuje wycenę usługi.
Dom i Woda nie wykonuje usług montażu zakupionych produktów. Instalatorzy są odrębnymi firmami, a skorzystanie z ich usług jest oczywiście dobrowolną decyzją każdego Klienta.
Klient kupujący w sklepie Dom i Woda może otrzymać kontakt do doświadczonego instalatora, jednak umowę na montaż Klient powinien podpisać z firmą instalacyjną, która wycenia zleconą usługę, wystawia oddzielną fakturę i ta firma ponosi odpowiedzialność za swoją pracę, rozpatruje ewentualne roszczenia czy reklamacje. Dom i Woda nie gwarantuje dostępności instalatora w wybranym terminie i podjęcia się wykonania zlecenia.
Montaż możesz wykonać również sam.
MONTAŻ ZBIORNIKA NA SZAMBO 2500l:
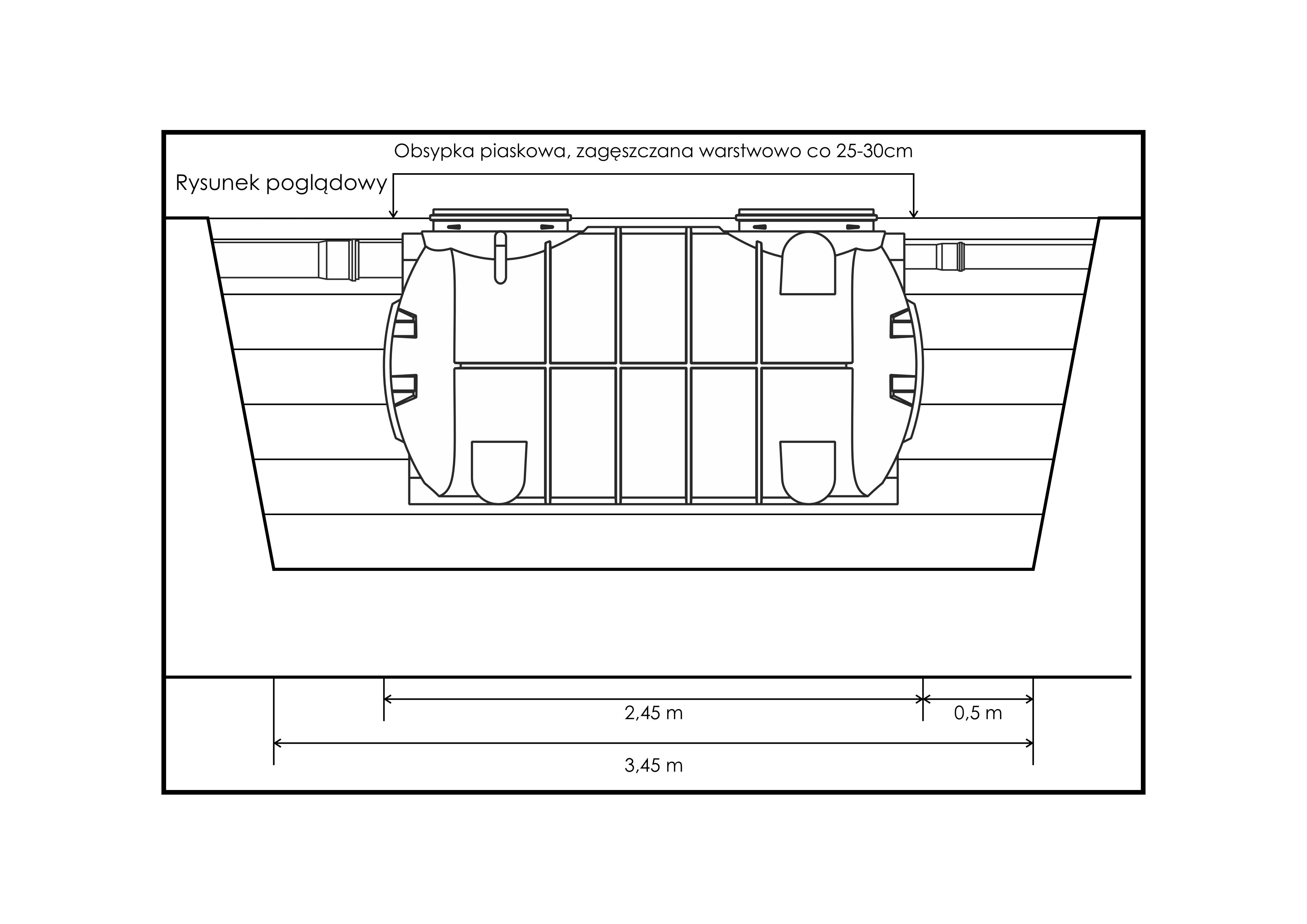
Instalację doprowadzającą wodę deszczową do zbiornika należy wykonać rurą PVC 110 i PVC 160, przy zachowaniu spadku 2,0%. Pod rurę kanalizacyjną należy ułożyć, 5 - 10 cm podsypki piaskowej.
Posadowienie zbiornika w gruntach piaszczystych bez występowania wód gruntowych
Przed przystąpieniem do posadowienia należy sprawdzić czy zbiornik nie jest uszkodzony.
Wykonać wykop tak aby pomiędzy zbiornikiem a ścianami wykopu pozostała wolna 0,5 m. przestrzeń ( w celu obsypania i zagęszczania piaskiem ).
Wykonać wykop tak aby pomiędzy zbiornikiem a ścianami wykopu pozostała wolna 0,5 m. przestrzeń ( w celu obsypania i zagęszczania piaskiem ).
Zbiornik montujemy na 10 cm podsypce piaskowej (zagęszczonej i wypoziomowanej). Następnie poziomujemy i lekko obsypujemy piaskiem w celu ustabilizowania go.
W trakcie montażu zbiornik zalewamy wodą w taki sposób aby poziom wody wlewanej do zbiornika był wyższy od poziomu obsypki.
W trakcie montażu zbiornik zalewamy wodą w taki sposób aby poziom wody wlewanej do zbiornika był wyższy od poziomu obsypki.
Zbiornik należy obsypywać warstwami o grubości 25 cm. Warstwy należy zagęścić ( polać wodą lub ubić).
W przypadku terenów ilastych lub gliniastych, należy wykonać opaskę betonową, zaś w przypadku posadowienia zbiornika w przejeździe należy wykonać odpowiednią płytę żelbetową – odciążającą oraz zastosować włazy żeliwne.
W przypadku posadowienia dwóch lub więcej zbiorników należy pamiętać że odległość między nimi nie może być mniejsza niż 1 m.
W przypadku terenów ilastych lub gliniastych, należy wykonać opaskę betonową, zaś w przypadku posadowienia zbiornika w przejeździe należy wykonać odpowiednią płytę żelbetową – odciążającą oraz zastosować włazy żeliwne.
W przypadku posadowienia dwóch lub więcej zbiorników należy pamiętać że odległość między nimi nie może być mniejsza niż 1 m.
W przypadku posadowienia zbiornika w przejeździe należy wykonać odpowiednią płytę żelbetową. W razie obsuwania się gruntu należy zastosować odpowiedni szalunek.
Posadowienie zbiornika w terenach o wysokim poziomie wód gruntowych ( lub w przypadku okresowego ich występowania np. na wiosnę, po dużych opadach itp. ) oraz w terenach gliniastych i ilastych
W przypadku występowania wód gruntowych, terenów ilastych lub gliniastych w miejscu posadowienia zbiornika, należy wykonać opaskę betonową w następujący sposób.
Przygotować mieszankę cementu „ 350 ” ze żwirem o frakcji 1-3mm , w stosunku ilościowym 1:3. Przygotowaną mieszankę wysypać na dno wykopu i równo zagęścić oraz wypoziomować.
Wstawić zbiornik do wykopu i przyłączyć do wystających króćców rury wlotowej i wylotowej oraz rozpocząć wlewanie wody do zbiornika. Następnie dosypać mieszankę do 1/4 wysokości zbiornika i zastosować co najmniej dwa pasy geowłókniny po bokach wykopu przełożonych przez górną płaszczyznę zbiornika ( tak jak na rysunku ). Dosypywać mieszankę warstwami z zagęszczaniem, każdej z nich. Po przekroczeniu górnej płaszczyzny zbiornika, należy kontynuować obsypywanie warstwami obsypki cementowo-piaskowej do wysokości 10 cm ponad korpus zbiornika.
Przygotować mieszankę cementu „ 350 ” ze żwirem o frakcji 1-3mm , w stosunku ilościowym 1:3. Przygotowaną mieszankę wysypać na dno wykopu i równo zagęścić oraz wypoziomować.
Wstawić zbiornik do wykopu i przyłączyć do wystających króćców rury wlotowej i wylotowej oraz rozpocząć wlewanie wody do zbiornika. Następnie dosypać mieszankę do 1/4 wysokości zbiornika i zastosować co najmniej dwa pasy geowłókniny po bokach wykopu przełożonych przez górną płaszczyznę zbiornika ( tak jak na rysunku ). Dosypywać mieszankę warstwami z zagęszczaniem, każdej z nich. Po przekroczeniu górnej płaszczyzny zbiornika, należy kontynuować obsypywanie warstwami obsypki cementowo-piaskowej do wysokości 10 cm ponad korpus zbiornika.
Jeżeli występuje wysoki poziom wód gruntowych należy na czas montażu obniżyć ich poziom przynajmniej o 40 cm poniżej dna wykopu . W trakcie montażu zbiornik zalewamy wodą w taki sposób, aby poziom wody wlewanej do zbiornika był wyższy od poziomu obsypki.
Szczgółowa instrukcja montażu przekazywana jest wraz z dostawą zbiornika.

Sprawdź oceny naszych Klientów 
