Zestaw do zbierania deszczówki o pojemności 2500L to kompleksowe i ekologiczne rozwiązanie do magazynowania i wykorzystania wody opadowej. Idealny do podlewania ogrodu, mycia pojazdów oraz innych zastosowań użytkowych, pozwala na oszczędność wody pitnej i ochronę środowiska.
Zbiornik na wodę deszczową 2500L wykonany jest z wytrzymałego polietylenu wysokiej gęstości (HDPE). Dzięki monolitycznej konstrukcji bez łączeń i spawów, wzmacnianej ożebrowaniem, zapewnia wysoką odporność na naprężenia, zmiany temperatury oraz wahania pH. Wyposażony w wymienny kosz filtracyjny oraz wlot PCV Ø110, co gwarantuje efektywną filtrację i gromadzenie wody.
Zestaw zawiera:
✔ Zbiornik podziemny 2500L – trwała i szczelna konstrukcja odporna na warunki gruntowe
✔ Pokrywa zbiornika – zabezpiecza wodę przed zanieczyszczeniami
✔ Pompa automatyczna, zatapialna – efektywne tłoczenie wody na potrzeby użytkowe
✔ Skrzynka ogrodowa – ułatwia dostęp do instalacji
✔ Złączki PE i połączenie wężem sztywnym – zapewniają szczelność i trwałość systemu
✔ Filtr koszowy – skutecznie zatrzymuje zanieczyszczenia z dachu, chroniąc wodę
Zalety produktu:
✅ Wysoka wytrzymałość i szczelność – odporność na uszkodzenia i warunki atmosferyczne
✅ Niska waga – łatwy montaż bez użycia dźwigów
✅ Oszczędność wody pitnej – ekologiczne rozwiązanie wspierające retencję wody
✅ Możliwość doboru pompy – kompatybilność z pompami ciśnieniowymi Kärcher i Pedrollo
✅ Szerokie zastosowanie – idealne do ogrodu, systemów nawadniających i zasilania spłuczek
Montaż
Instalator przygotowuje wycenę usługi.
Dom i Woda nie wykonuje usług montażu zakupionych produktów. Instalatorzy są odrębnymi firmami, a skorzystanie z ich usług jest oczywiście dobrowolną decyzją każdego Klienta.
Klient kupujący w sklepie Dom i Woda może otrzymać kontakt do doświadczonego instalatora, jednak umowę na montaż Klient powinien podpisać z firmą instalacyjną, która wycenia zleconą usługę, wystawia oddzielną fakturę i ta firma ponosi odpowiedzialność za swoją pracę, rozpatruje ewentualne roszczenia czy reklamacje. Dom i Woda nie gwarantuje dostępności instalatora w wybranym terminie i podjęcia się wykonania zlecenia.
Montaż możesz wykonać również sam.
.
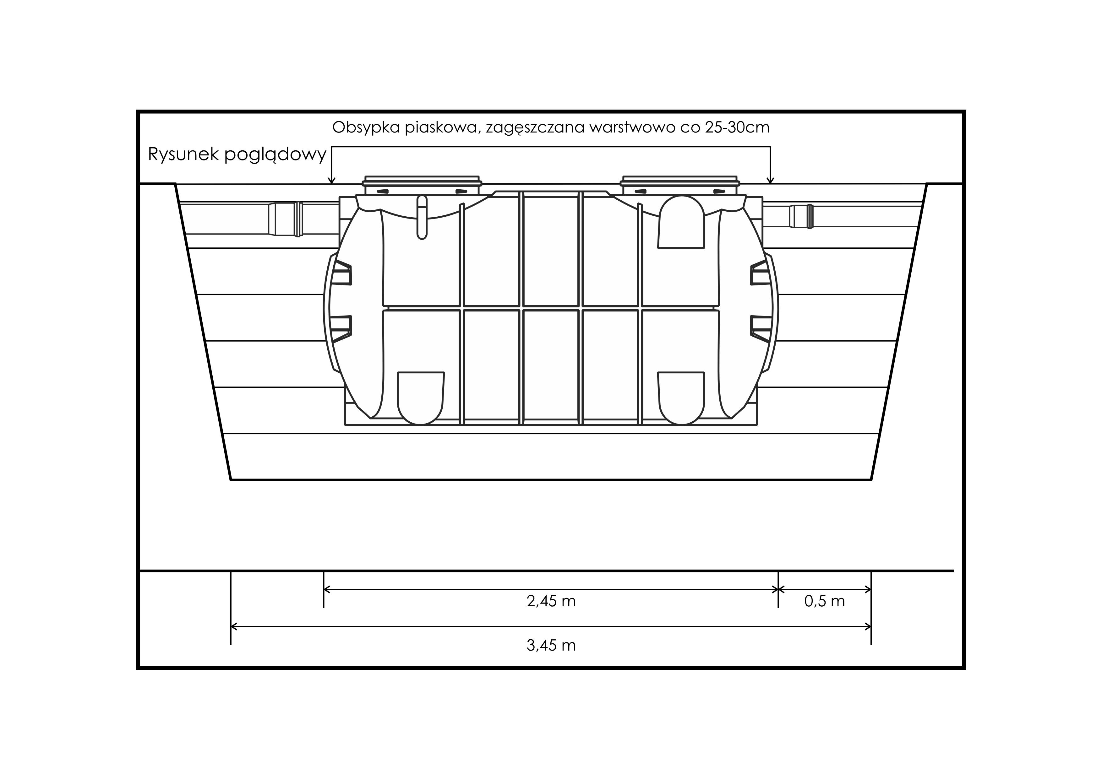
MONTAŻ ZBIORNIKA:
Wykonać wykop tak aby pomiędzy zbiornikiem a ścianami wykopu pozostała wolna 0,5 m. przestrzeń ( w celu obsypania i zagęszczania piaskiem ).
W trakcie montażu zbiornik zalewamy wodą w taki sposób aby poziom wody wlewanej do zbiornika był wyższy od poziomu obsypki.
W przypadku terenów ilastych lub gliniastych, należy wykonać opaskę betonową, zaś w przypadku posadowienia zbiornika w przejeździe należy wykonać odpowiednią płytę żelbetową – odciążającą oraz zastosować włazy żeliwne.
W przypadku posadowienia dwóch lub więcej zbiorników należy pamiętać że odległość między nimi nie może być mniejsza niż 1 m.
W przypadku posadowienia zbiornika w przejeździe należy wykonać odpowiednią płytę żelbetową. W razie obsuwania się gruntu należy zastosować odpowiedni szalunek.
Posadowienie zbiornika w terenach o wysokim poziomie wód gruntowych ( lub w przypadku okresowego ich występowania np. na wiosnę, po dużych opadach itp. ) oraz w terenach gliniastych i ilastych
Przygotować mieszankę cementu „ 350 ” ze żwirem o frakcji 1-3mm , w stosunku ilościowym 1:3. Przygotowaną mieszankę wysypać na dno wykopu i równo zagęścić oraz wypoziomować.
Wstawić zbiornik do wykopu i przyłączyć do wystających króćców rury wlotowej i wylotowej oraz rozpocząć wlewanie wody do zbiornika. Następnie dosypać mieszankę do 1/4 wysokości zbiornika i zastosować co najmniej dwa pasy geowłókniny po bokach wykopu przełożonych przez górną płaszczyznę zbiornika ( tak jak na rysunku ). Dosypywać mieszankę warstwami z zagęszczaniem, każdej z nich. Po przekroczeniu górnej płaszczyzny zbiornika, należy kontynuować obsypywanie warstwami obsypki cementowo-piaskowej do wysokości 10 cm ponad korpus zbiornika.
Szczgółowa instrukcja montażu przekazywana jest wraz z dostawą zbiornika.


Sprawdź oceny naszych Klientów 
